PRIMARY HEALTHCARE CENTER IN MANTAMADO, LESVOS ISLAND

PRIMARY HEALTHCARE CENTER IN MANTAMADO, LESVOS ISLAND

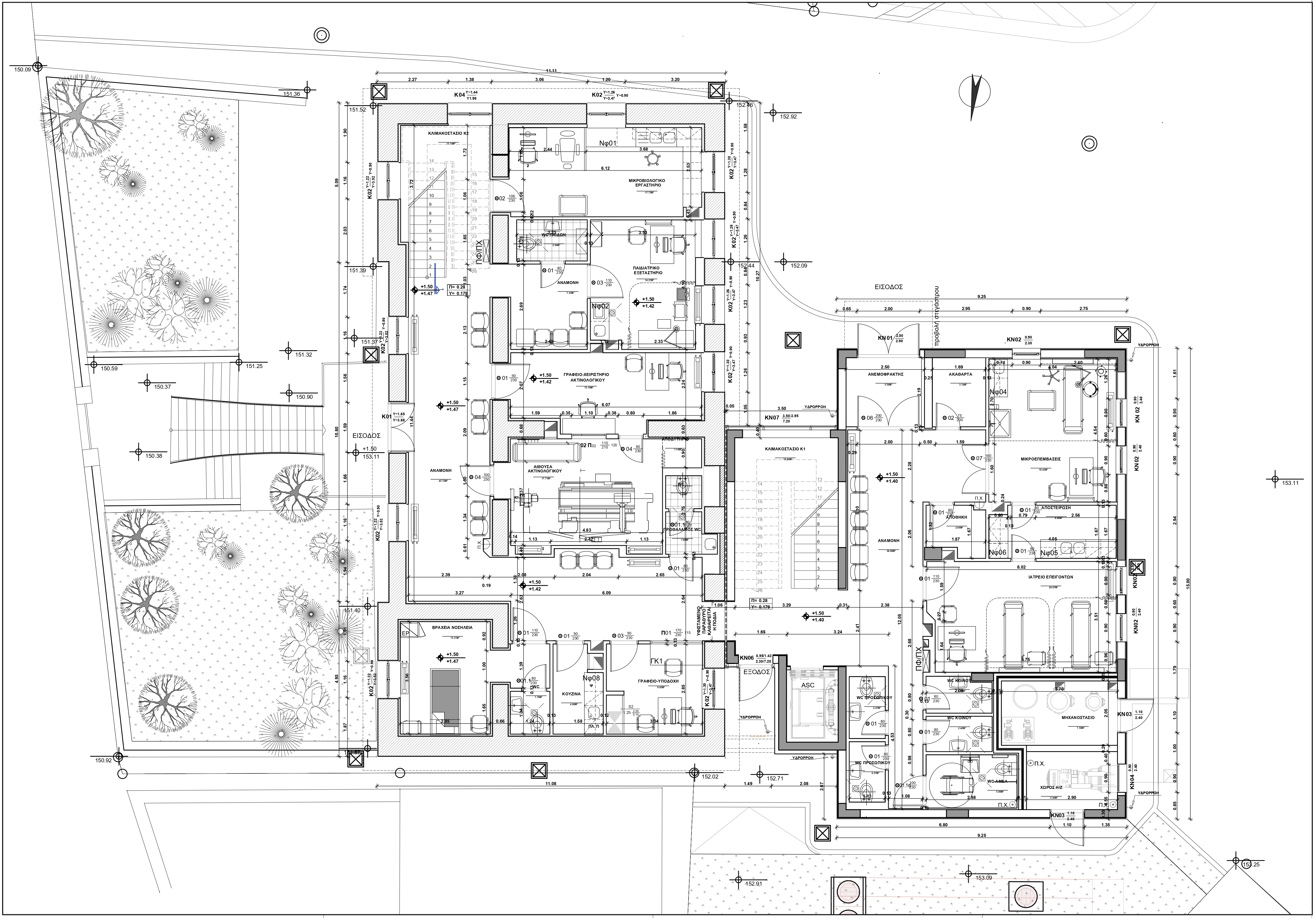
Rehabilitation of the historical building “Parthenagogio School” of Madamado and construction of a new expansion for hosting the Primary Healthcare and First Aid Center of Madamado. The proposed interventions respect the image of the historical building and the village heritage. The new expansion is designed with contemporary materials in order to be distinguishable and identifiable aesthetically and chronologically from the historical monument.
  • Client : 2ND D.Y.P.E. OF PEIRAUS & AEGEAN ISLANDS
  • Initial Architectural study : BETAPLAN
  • Structural study: G. Diamantaras
  • M.E.P. study : S. Vavaliaros