Addition of Two Floors to the Emergency Department Building for the Creation of Operating Theatres and Central Sterilization Unit at the General Hospital of Nikaia

Addition of Two Floors to the Emergency Department Building for the Creation of Operating Theatres and Central Sterilization Unit at the General Hospital of Nikaia

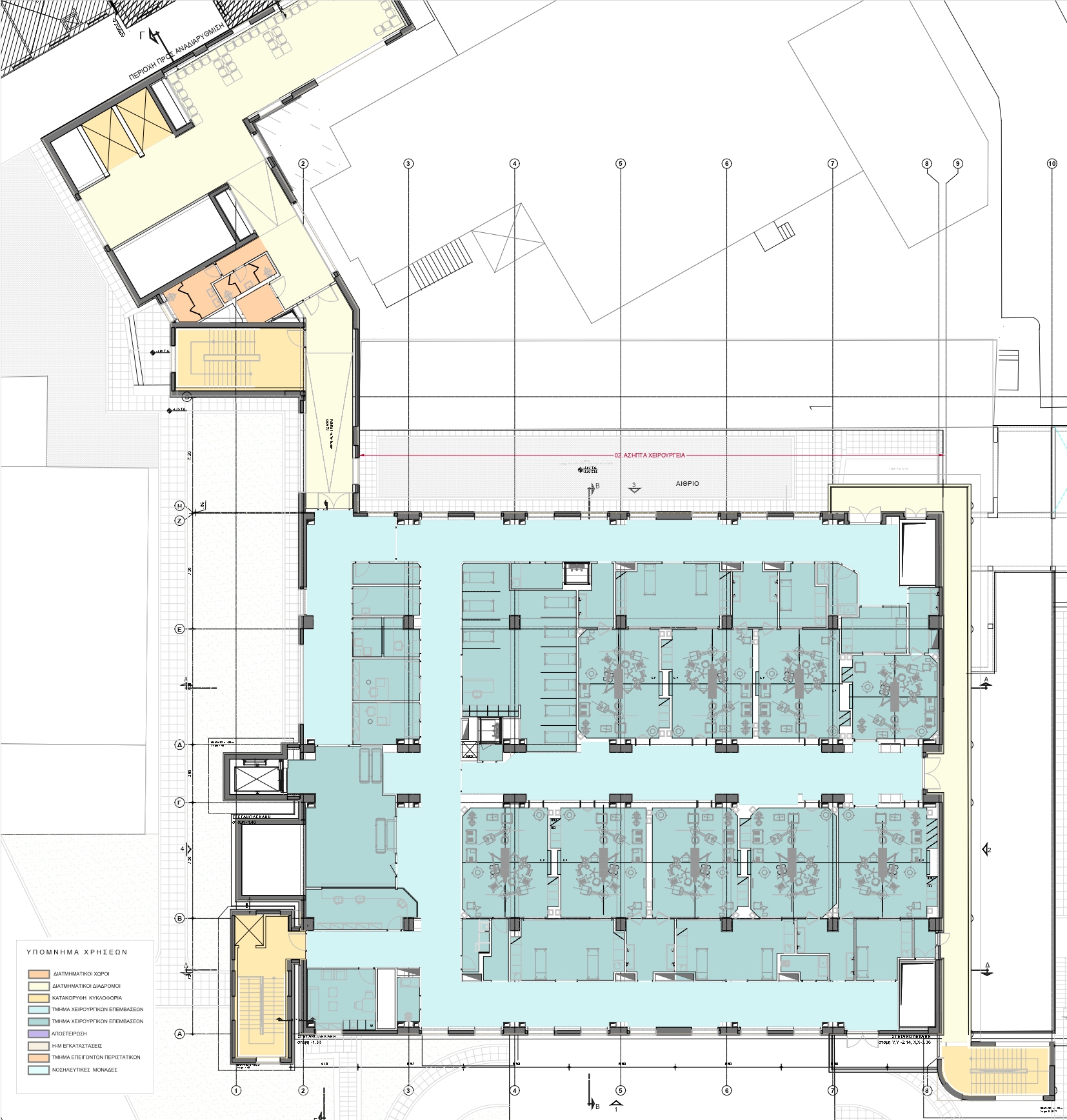
Vertical extension of two additional floors will be constructed on the existing ground-floor building of the Emergency Department (E.D.) at the General Hospital of Nikaia “Agios Panteleimon”, to create nine modern, fully equipped operating theatres on the second floor and a Central Sterilization Unit on the first floor, serving the entire hospital.
  • Given the increased healthcare needs of the wider area, this project is of utmost importance, representing a key addition that will significantly enhance the overall efficiency and functionality of the General Hospital of Nikaia “Agios Panteleimon.”